Rantaniityntie 15

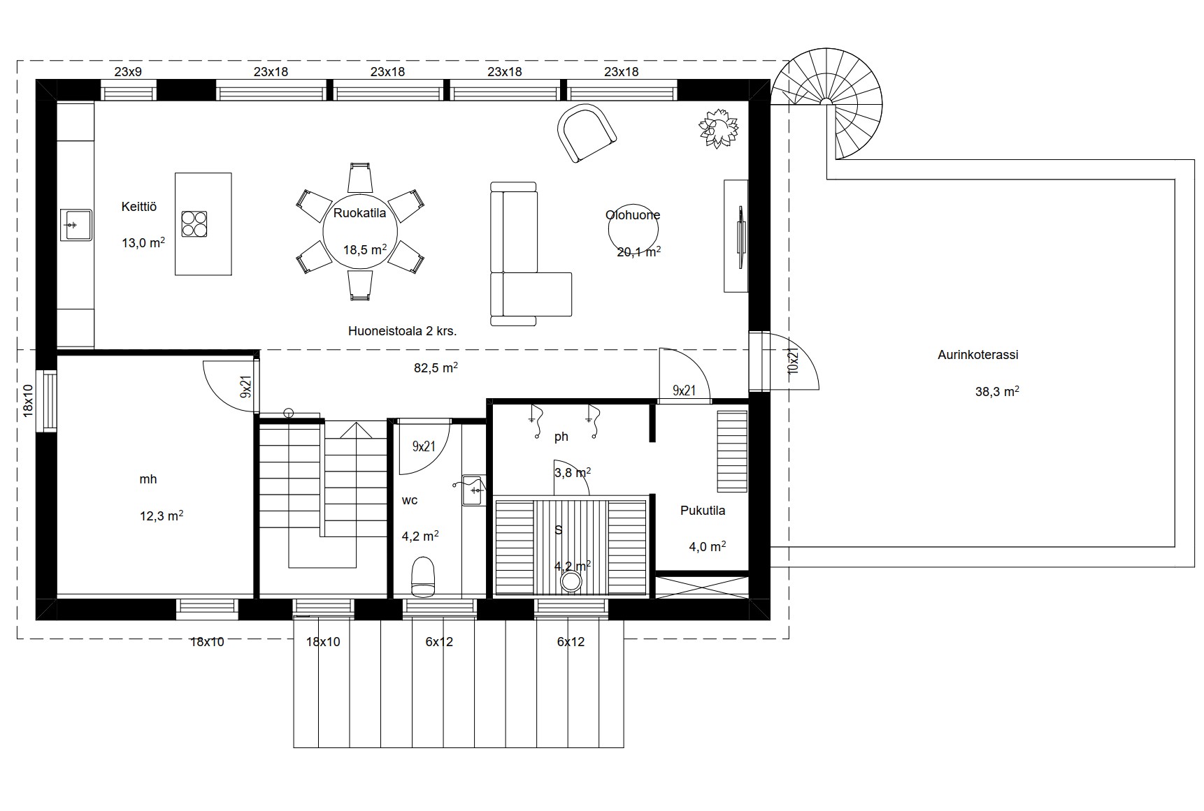
Rantaniityntie 15 tarjoaa tilavaa ja toimivaa asumista kahteen kerrokseen jaettuna. Tämä 171 m²:n omakotitalo on suunniteltu arjen sujuvuutta ja viihtyvyyttä ajatellen, tarjoten monipuoliset tilaratkaisut isommallekin perheelle.

Yläkerta toimii kodin sydämenä, jossa sijaitsevat keittiö ja avarat oleskelutilat, makuuhuone sekä pesu- ja saunatilat. Saunasta on suora kulku upealle aurinkoterassille, joka tarjoaa erinomaiset puitteet rentoutumiseen ja vapaa-aikaan.

Alakerrasta löytyvät kolme makuuhuonetta, erillinen työtila sekä pesuhuone, ja sieltä on myös kulku terassille. Kokonaisuus tarjoaa joustavuutta asumiseen, tilaa yhdessäololle sekä rauhaa omiin hetkiin.

Asuintilojen pinta-ala: 171

Kerros lkm: 1

Asuntotyyppi: Omakotitalot

Kuvia kohteesta

Tuunaa tästä seuraava kotisi

Ihastuitko kohteeseen? Tee siitä omannäköisesi!

Meiltä voit tilata helposti referenssikohteitamme vastaavan kokonaisuuden omaksi kodiksi. Istumme kuitenkin mielellämme myös alas kanssasi, mikäli haluat tehdä omaa arkeasi paremmin palvelevia muutoksia talon pohjaan tai pintoihin.

"*" näyttää pakolliset kentät

Kenttä on validointitarkoituksiin ja tulee jättää koskemattomaksi.