Ukkospolku 7

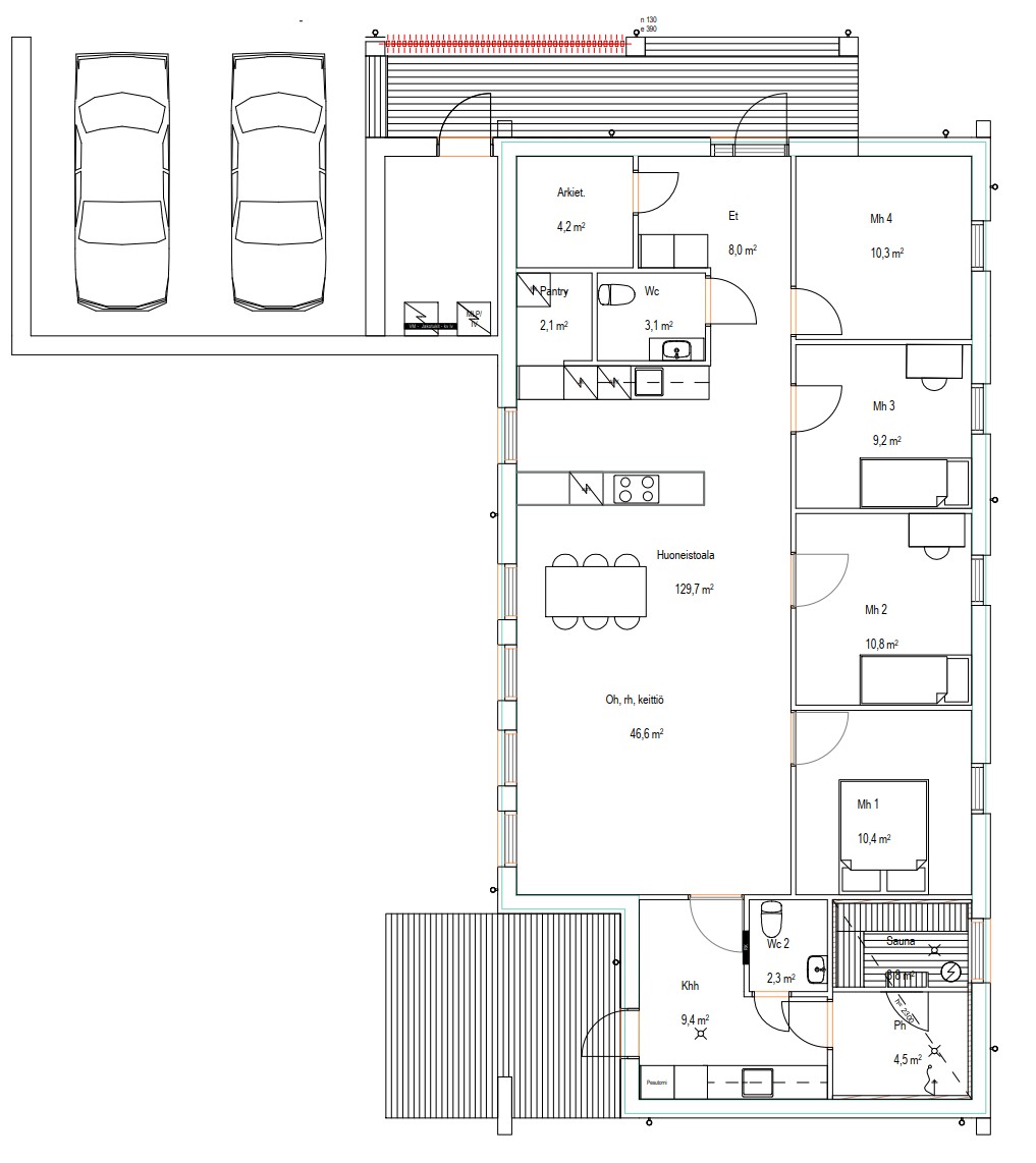
Ukkospolku 7 on moderni yksikerroksinen omakotitalo, jossa yhdistyvät selkeä arkkitehtuuri ja arjen toimivuus. Tämä 130 m² huoneistoalan koti tarjoaa käytännöllisen ja viihtyisän pohjaratkaisun, joka sopii erinomaisesti niin perheille kuin sujuvaa asumista arvostaville.

Kokonaisuuden viimeistelee taloon kiinteästi yhdistetty kahden auton talousrakennus, joka tuo arkeen helppoutta, suojaa ja lisää säilytystilaa. Selkeälinjainen ilme ja moderni toteutus tekevät tästä kodista ajattoman ja toimivan kokonaisuuden, jossa on helppo viihtyä.

Asuintilojen pinta-ala: 130

Kerros lkm: 1

Asuntotyyppi: Omakotitalot

Kuvia kohteesta

Tuunaa tästä seuraava kotisi

Ihastuitko kohteeseen? Tee siitä omannäköisesi!

Meiltä voit tilata helposti referenssikohteitamme vastaavan kokonaisuuden omaksi kodiksi. Istumme kuitenkin mielellämme myös alas kanssasi, mikäli haluat tehdä omaa arkeasi paremmin palvelevia muutoksia talon pohjaan tai pintoihin.

"*" näyttää pakolliset kentät

Kenttä on validointitarkoituksiin ja tulee jättää koskemattomaksi.