Norrskog 155 – Skandinaavista selkeyttä ja toimivaa arkea
Norrskog 155 on moderni, yksikerroksinen koti, jossa yhdistyvät ajaton skandinaavinen estetiikka ja käytännöllinen pohjaratkaisu. Talon selkeälinjainen harjakatto ja tyylikäs pystypanelointi luovat rauhallisen ja luonnonläheisen ulkoasun, joka sopii kauniisti pohjoismaiseen maisemaan.
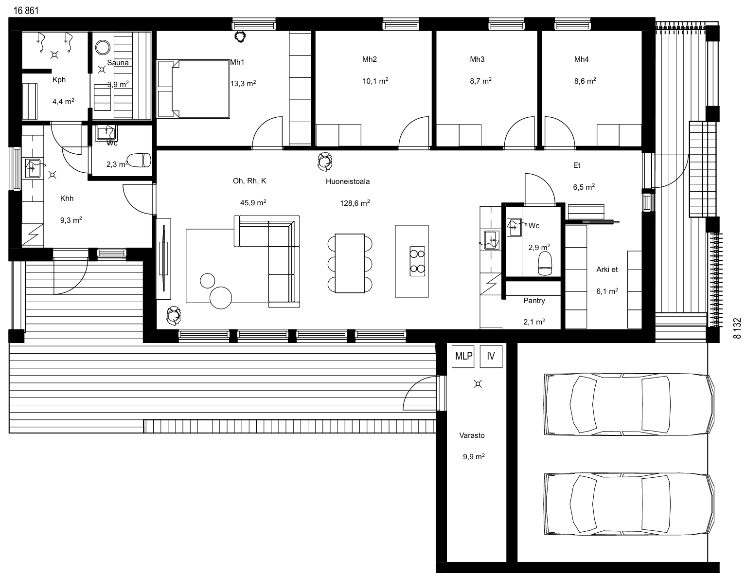
Kodissa on neljä makuuhuonetta, jotka tarjoavat tilaa niin perheelle, vieraille kuin etätyöskentelyyn. Oleskelutilat avautuvat valoisina ja avarina suurten ikkunoiden ansiosta, tuoden luonnonvalon osaksi jokapäiväistä elämää ja luoden viihtyisän tunnelman ympäri vuoden.
Arjen sujuvuutta lisää erityisen tilava arkieteinen, joka toimii käytännöllisenä sisääntulona ja säilytystilana. Huolellisesti suunniteltu kokonaisuus tekee kodista toimivan ja mukavan niin kiireiseen arkeen kuin rentouttaviin hetkiin.
Norrskog 155 on koti sinulle, joka arvostat selkeää muotoilua, valoisuutta ja toimivia tilaratkaisuja – ilman kompromisseja.

