ARBORA on kaksikerroksinen koti, jossa arjen toimivuus ja näyttävä tilankäyttö kohtaavat modernilla, skandinaavisella otteella. Selkeä arkkitehtuuri ja harkitut yksityiskohdat luovat kokonaisuuden, joka tuntuu yhtä aikaa rauhalliselta ja vaikuttavalta.
Alakerta on suunniteltu käytännölliseksi arjen tukikohdaksi. Täältä löytyvät kolme makuuhuonetta sekä erillinen työskentelytila, jotka tarjoavat joustavuutta niin perhe-elämään kuin etätyöhön. Lisäksi pesutilat sijaitsevat kätevästi tässä kerroksessa. Suora kulku terassille tuo ulkotilan osaksi päivittäistä elämää ja tarjoaa paikan rentoutumiseen.
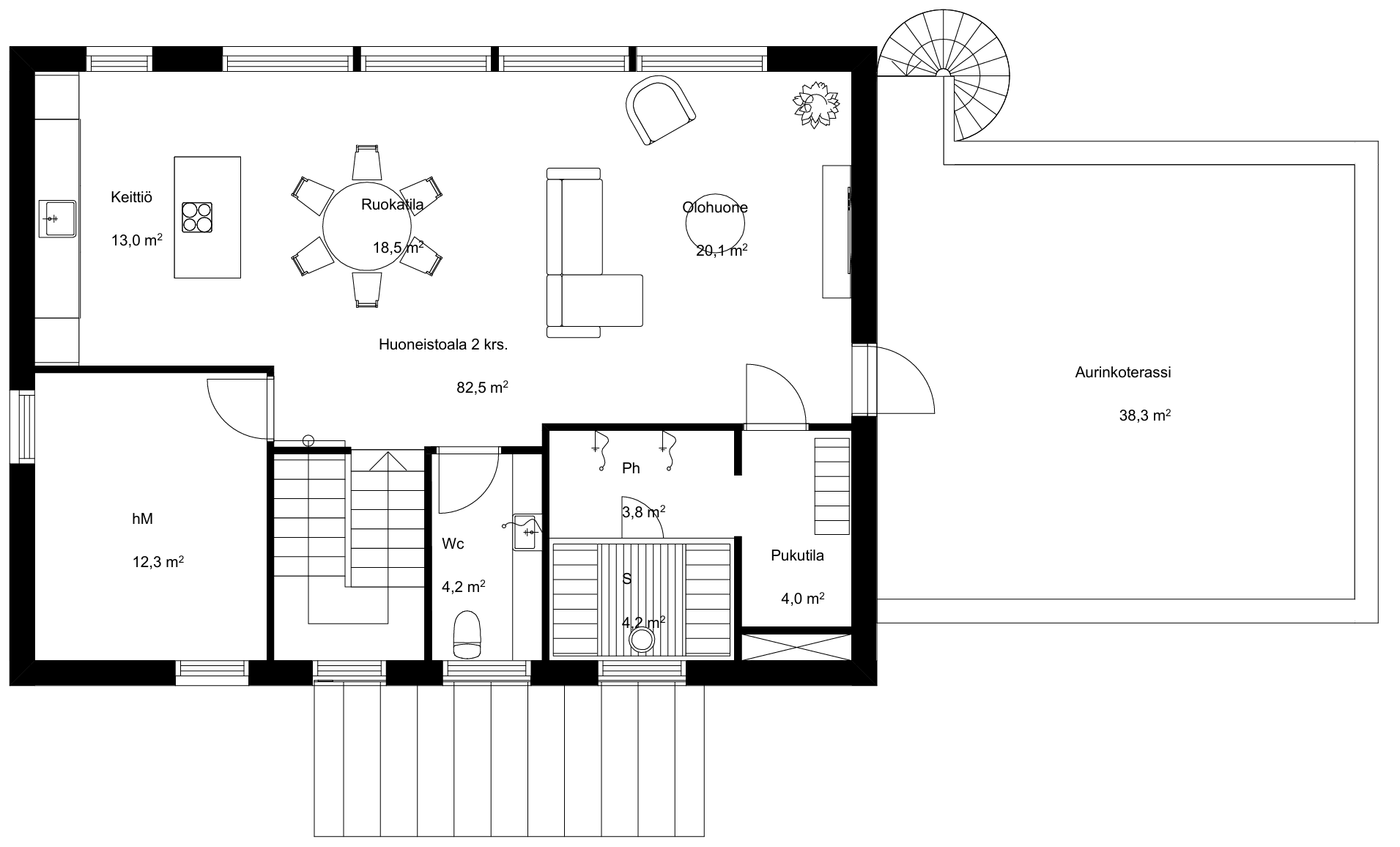
Yläkerta avautuu valoisana ja avarana kokonaisuutena, jossa ruoanlaitto, ruokailu ja oleskelu sulautuvat yhdeksi suureksi yhteiseksi tilaksi. Tämä kerros on kodin sydän – paikka, jossa kohdataan, viihdytään ja eletään arjen parhaat hetket. Yläkerrasta löytyy myös yksi makuuhuone sekä tilavat pesutilat, jotka tuovat asumiseen lisämukavuutta.
Kokonaisuuden kruunaa yläkerran aurinkoterassi, josta kulku jatkuu näyttäviä kierreportaita pitkin suoraan maantasoon. Tämä yksityiskohta tekee liikkumisesta sujuvaa ja yhdistää kerrokset ainutlaatuisella tavalla.
ARBORA on koti, jossa tilat on suunniteltu elämää varten – paikka, jossa arki rullaa luontevasti ja ympäristö tukee viihtymistä joka päivä.








