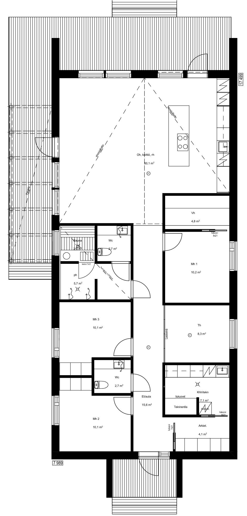
ARVELA on yksitasoinen omakotitalo, jossa arkkitehtuuri, valo ja huolellinen suunnittelu muodostavat vaikuttavan ja toimivan kokonaisuuden. Tämä 140 huoneistoneliön koti on osoitus siitä, miten tarkalla mitoituksella ja harkituilla ratkaisuilla voidaan luoda tilaa, joka tuntuu huomattavasti kokoaan suuremmalta.
Kolme makuuhuonetta tarjoavat rauhalliset ja joustavat tilat perheen arkeen. Erillinen työhuone, joka avautuu käytävään lasiseinän kautta, tuo kotiin modernin ja inspiroivan työskentely-ympäristön – tila on oma, mutta silti yhteydessä kodin valoon ja rytmiin.
Oleskelutilat ovat kodin näyttävin kokonaisuus. Korkea, jopa kuuden metrin huonekorkeus ja vinosisäkatto luovat henkeäsalpaavan tilan tunnun. Suuri päätyyn suunniteltu lasiseinä tuo luonnon osaksi sisätilaa, ja vinot ikkunalinjat viimeistelevät arkkitehtonisen ilmeen. Valo elää tilassa päivän mittaan ja korostaa sen ainutlaatuista mittakaavaa. Saarekkeellinen keittiö nivoo oleskelutilat yhteen ja toimii kodin luontevana kohtaamispaikkana.
Arjen toimivuus on huomioitu heti sisääntulosta lähtien: tilava eteinen yhdessä erillisen arkieteisen kanssa pitää kodin järjestyksessä ja helpottaa perheen päivittäistä liikkumista ja säilytystä.
ARVELA on koti, jossa tilantuntu, valo ja tarkkaan mietitty pohjaratkaisu luovat harmonisen kokonaisuuden. Se on enemmän kuin neliöidensä summa – se on elämyksellinen ja tasapainoinen koti, jossa arki saa aivan uuden mittakaavan.



