Hirsitalot

NORDLUND 146/157

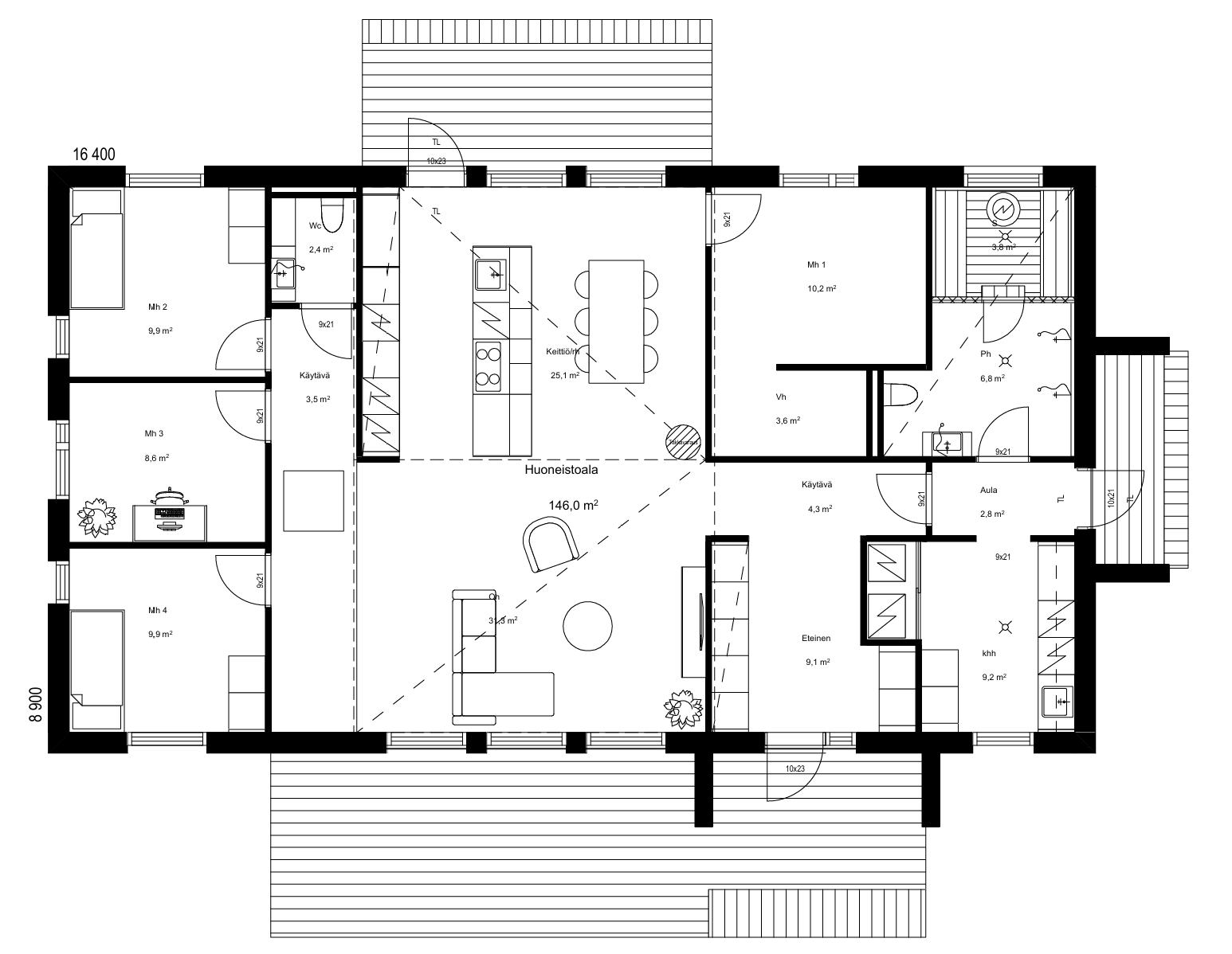
Hirsitalo

Huoneita: 5h + Keittiö + Et + Wc + Kph + vh + Sauna + Khh + Sauna

NORDLUND on yksitasoinen koti, jossa valo, tila ja huolellinen suunnittelu muodostavat harmonisen kokonaisuuden. Tämä 146 huoneistoneliön koti on esimerkki siitä, miten tarkalla mitoituksella ja harkituilla ratkaisuilla saadaan aikaan enemmän kuin pelkät neliöt – syntyy toimiva ja avara arki.

Neljä makuuhuonetta tarjoavat joustavuutta erilaisiin elämäntilanteisiin, olipa kyse perhearjesta, työtiloista tai vierashuoneista. Kodin tilavat oleskelutilat avautuvat läpi talon, ja suuret ikkunapinnat päästävät luonnonvalon tulvimaan sisään koko päivän ajan. Korkea vinosisäkatto korostaa avaruutta ja tuo tilaan näyttävää ilmettä, joka tuntuu yhtä aikaa rauhalliselta ja vaikuttavalta.

Arjen toimivuus näkyy myös käytännön ratkaisuissa: tilava eteinen runsaalla kaappitilalla pitää kodin järjestyksessä ja helpottaa perheen päivittäistä elämää. Pesu- ja saunatilojen suunnittelussa on huomioitu rentoutuminen – saunasta on suora kulku terassille vilvoittelemaan, mikä tekee arjen hetkistä erityisiä vuodenajasta riippumatta.

NORDLUND on koti, jossa jokainen neliö on käytetty viisaasti ja jokainen tila palvelee elämää. Se on selkeä, valoisa ja tasapainoinen kokonaisuus – koti, jossa on hyvä olla ja helppo elää.

Mallistomme

Katso myös nämä

HIRSITALO
HIRSITALO
Kerroksia
1
Kerrosala
143,6 m²
Huoneistoala
133,6 m²
HIRSITALO
Kerroksia
1
Kerrosala
186,6 m²
Huoneistoala
137,7 m² + 33,8 m²
HIRSITALO
Kerroksia
1
Kerrosala
127,6 m²
Huoneistoala
118,1 m²
HIRSITALO
Kerroksia
1
Kerrosala
159 m²
Huoneistoala
149,2 m²
HIRSITALO
Kerroksia
1
Kerrosala
113 m²
Huoneistoala
104 m²
HIRSITALO
Kerroksia
1
Kerrosala
140,5 m²
Huoneistoala
130,3 m²
Kysy lisää

Aika aloittaa sinun unelmiesi projekti?

Täytä ja lähetä oheinen lomake, voit myös soittaa tai lähettää sähköpostia:

Juuso Bergdahl

Ota yhteyttä ja pyydä tarjous

"*" näyttää pakolliset kentät

Kenttä on validointitarkoituksiin ja tulee jättää koskemattomaksi.

"*" näyttää pakolliset kentät

Kenttä on validointitarkoituksiin ja tulee jättää koskemattomaksi.